★今週より新築一戸建 練馬北町1丁目 土地36坪 角地 大型4LDK+P 6,780万円(税込) 販売開始します。
設備仕様は標準設備・床暖房付・食洗機付・ペアガラス・浴室TV付・屋上付・ウォシュレット付・浄水器付です。
ショールームがございます。設備・仕様・構造などについてお客様に担当設計士より詳しくご説明致します。
詳細についてもお気軽にお問合せ下さい。お待ちしております。






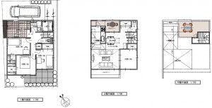
★今週より新築一戸建 練馬北町1丁目 土地36坪 角地 大型4LDK+P 6,780万円(税込) 販売開始します。
設備仕様は標準設備・床暖房付・食洗機付・ペアガラス・浴室TV付・屋上付・ウォシュレット付・浄水器付です。
ショールームがございます。設備・仕様・構造などについてお客様に担当設計士より詳しくご説明致します。
詳細についてもお気軽にお問合せ下さい。お待ちしております。




